Skip to main content
Steer Home

Main navigation (India)

  • Sectors
    • Transport
      • Active travel
      • Aviation
      • Freight & logistics
      • Ports & maritime
      • Rail, bus & transit
      • Roads, bridges & tunnels
      • Urban & rural mobility
    • Places & communities
      • Community planning
      • Commercial real estate & housing
      • Economic development & regeneration
      • Education & health
      • Leisure, arts & culture
      • Sports & major events
    • Resources
      • Energy
      • Property & land
      • Telecommunications & data
      • Water
  • Services
    • Advisory & financial
      • Market research & intelligence
      • Demand & revenue forecasting
      • Business & financial modelling
      • Capital programme advice & assurance
      • Project financing
      • Commercial & technical due diligence
      • Economic impact
    • Strategy & policy
      • Policy development
      • Business case & advocacy
      • New technologies
      • Regulation & competition
      • Sustainability & climate resilience
      • Strategy & management consulting
    • Planning, delivery & experience
      • Community engagement
      • Network design & operation
      • Cost modelling & strategies
      • Feasibility & detailed design
      • Information & wayfinding
      • Infrastructure & development planning
    • Underpinning capabilities
      • Data science & analytics
      • ESG
      • Equity & inclusion
      • Monitoring & evaluation
  • Projects
  • Insights
Regions
  • Global
  • North America
  • Latin America
  • Europe
  • UK & Ireland
  • India
Search
Contact
  1. Home
  2. Projects
  3. Design of an innovative cycle hub in Haven Green
London Borough of Ealing, UK

Design of an innovative cycle hub in Haven Green

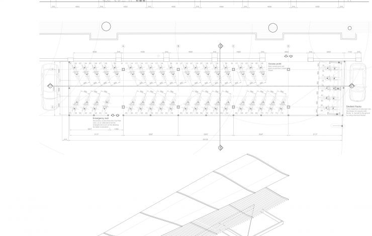
Steer was invited to participate in a design competition to create a colourful and innovative new space centred on temporary cycle parking to accommodate at least 100 bicycles that would act as a local landmark.

Our successful concept design used parametric principles to create a simple timber structure supporting an eye catching tensile canopy that will provide sheltered cycle storage within Haven Green.

Outputs included a planning application submission and a series of technical drawings and specifications to inform an invitation to tender for manufacturers to bid for the fabrication and installation of the structure.

On
Steer group

We are Steer

Yes, you are in the right place. After 40 years, we have changed our name from Steer Davies Gleave to mark our growing international footprint and our expanding portfolio into sectors beyond transport.

Explore our new website to learn more about Steer: who we are, how we work and what our future holds.

Complex challenges.
Powerful solutions. 

Footer (India)

  • Sectors
  • People
  • Services
  • About
  • Projects
  • Careers
  • Insights
  • Contact
  • Events
  • Our impact

©2025 Steer      Legal & policies        Cookie settings

Subscribe to our newsletter

  • Facebook
  • Twitter
  • Linkedin
  • Instagram
  • Spotify

Back to top